Coming Soon: A New Collection of Energy-Efficient Detached Bungalows in Market Rasen

Coming Soon: A New Collection of Energy-Efficient Detached Bungalows in Market Rasen

A new development of energy-efficient detached bungalows is coming soon to the edge of Market Rasen — register now for early updates and pricing.

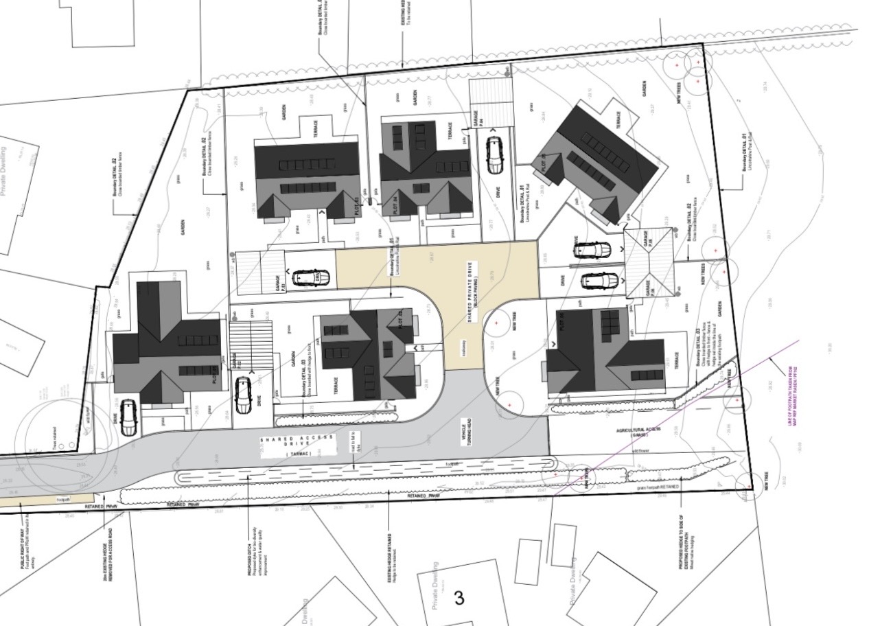
Positioned on the quiet outskirts of Market Rasen, this exclusive new development will comprise just six detached bungalows, forming a private cul-de-sac surrounded by open space. Each home will sit on a generous plot, with selected properties enjoying open views across adjoining paddocks.

Designed for efficiency, comfort, and everyday practicality, the homes are projected to achieve an A-rated EPC, incorporating air-source heat pumps, solar panels, and triple-glazed windows to deliver excellent energy performance and reduced running costs.

The development will feature a choice of layouts and designs, including options for both single and double garages. Each bungalow has been thoughtfully planned with traditional layouts that combine open-plan living with functional space. The kitchen-dining areas are positioned to the rear of each home and open through bi-fold doors onto private gardens and patio areas — perfect for enjoying the surroundings and the open paddock views available from selected plots.

Every home will be finished to a high specification, including fitted kitchens with integrated appliances, quality bathroom suites with full wall tiling, and carefully selected finishes to create a modern, welcoming feel throughout.

👉 Register your interest below to receive updates as the development progresses and be among the first to receive details on pricing and plot availability.



About the Developer — Boss Group


Mundys are proud to be working in partnership with Boss Group, an award-winning, family-run Lincolnshire developer recognised for quality, reliability, and attention to detail.

With extensive experience across both residential and commercial projects, Boss Group delivers a complete service from design and planning through to construction and completion. Their in-house team of builders, designers, and engineers work closely together to ensure every project runs efficiently and achieves the highest possible standard.

The company’s commitment to quality craftsmanship, practical design, and strong local values has established Boss Group as one of Lincolnshire’s most trusted names in development — consistently recognised through multiple industry awards.


About Market Rasen


Market Rasen is a well-connected Lincolnshire market town that offers an excellent balance of rural surroundings and everyday amenities. The town centre includes a variety of independent shops, cafés, pubs, and restaurants, along with supermarkets and essential local services.

For leisure and recreation, Market Rasen offers plenty to enjoy from the Market Rasen Leisure Centre and Market Rasen Racecourse to nearby walking and cycling routes leading into the beautiful Lincolnshire Wolds Area of Outstanding Natural Beauty.
Close by, Willingham Woods provides miles of scenic woodland trails ideal for walking and picnics.

Just a short drive away, the picturesque village of Tealby is one of Lincolnshire’s prettiest, known for its stone cottages, countryside walks, and the welcoming King’s Head pub, a favourite spot for food and drink.

Market Rasen also benefits from excellent transport links, including a train station with regular services to Lincoln, Grimsby, and Cleethorpes, plus easy road access to Lincoln (around 15 miles), Louth, Caistor, and the Lincolnshire coast via the A46 and A631.




Ready to Find Out More?


If you’d like to receive updates on progress, plot releases, and pricing for this exciting new development, please visit the development page (https://www.mundys.net/developments/legsby-court-market-rasen/) and register your details.

Or

Contact Our New Homes Team

01522 510044
newhomes@mundys.net









Get in touch with us

If you’re planning to buy a home soon, you might assume the best place to start is on the property portals, Rightmove, Zoopla, or OnTheMarket. But the truth is, the savviest buyers are seeing homes long before they ever appear online. Here’s why registering with an agent puts you one step ahead.

It seems a long time since the Renters’ Rights Bill was passed. The Bill has since progressed into law as the Renters' Rights Act 2025 and the Government has now confirmed the timetable for its implementation.

Set in the quiet village of Goulceby, right in the centre of the Lincolnshire Wolds, two individually built executive homes are now available — with one already Sold STC. Built by Paul Roberts Builders, a respected father-and-son local developer, these homes offer a rare opportunity for anyone looking for space, specification and a rural setting.

If your home has been sitting on the market with no progress, you’re not stuck. Switching estate agents is easier than you think, if you understand your contract and prepare properly. Here’s the truth, the timelines and the process to relaunch with impact.